Котел 150 кВт дизельный в Мангистау

Дизельный котел КВа 150 кВт
Котел КВа 150 кВт дизельный
Чертеж дизельного котла КВа 150 кВт
Дизельный котел КВа 150 кВт чертеж
Дизельный водогрейный котел 150 кВт
Водогрейный дизельный котел 150 кВт
Дизельный котел 150 кВт промышленный
Промышленный дизельный котел 150 кВт
Котел 150 кВт отопительный на дизеле
Отопительный котел 150 кВт на дизеле
Дизельные котлы 150 кВт
Котлы дизельные 150 кВт
Дизельный котел 150 кВт производство
Производство дизельных котлов 150 кВт
Дизельный котел КВа 150 кВт
Чертеж дизельного котла КВа 150 кВт
Дизельный водогрейный котел 150 кВт
Дизельный котел 150 кВт промышленный
Котел 150 кВт отопительный на дизеле
Дизельные котлы 150 кВт
Дизельный котел 150 кВт производство
Цена
2 079 720 ₸
От 2 079 720 ₸ с доставкой до г.
Логотип WhatsApp Связаться
по WhatsApp
  • Автоматическое регулирование температурных режимов
  • Надежная гладкотрубная конструкция исключает деформации и разрывы швов
  • Встроенная система взрывобезопасности
  • Низкие требования к качеству питательной воды
  • Модель работает с отечественными и импортными горелками

Технические характеристики

МаркаКотел 150 кВт на дизеле
ВидВодогрейный
Тип отопительного котлаГазовый
БрендHEATEXPERT
ТипКотел КВа
Вид топкиДизельная горелка
Совместимое горелочное устройствоИмпортные горелки Gib Unigas, Oilon, Ecoflam и тд.
Максимальная тепловая мощность0.15 МВт
Максимальная тепловая мощность150 кВт
Максимальная тепловая мощность0.13 Гкал
Диапазон регулирования мощности40-100 %
ТопливоДизель
Низшая теплота сгорания проектного топлива10200 кКал/кг
КПД котла на ДИЗЕЛЕ, не менее91.4 %
Расход ДИЗЕЛЯ среднечасовой за отопительный сезон8 кг/ч
Расход ДИЗЕЛЯ при максимальной нагрузке котла14 кг/ч
Расход условного топлива20 кг/ч
Минимальная температура воды на входе в котел55 °С
Максимальная температура воды на выходе из котла115 °С
Давление воды, не более0.3-0.6 (3-6) МПа (кгс/см²)
Номинальный расход теплоносителя5 м³/ч
Расход теплоносителя через котел min-max3.5-6.5 м³/ч
Гидравлическое сопротивление при номинальном расходене более 0.07 (0.7) МПа (кгс/см²)
Аэродинамическое сопротивление140 (14) Па (мм. вод. ст.)
Давление в топочной камере190 (19) Па (мм. вод. ст.)
Объем уходящих газов300 м³/ч
Температура уходящих газов182 °С
ТягаПринудительная
Водяной объем котла200 л
Объем топочной камеры0.25 м³
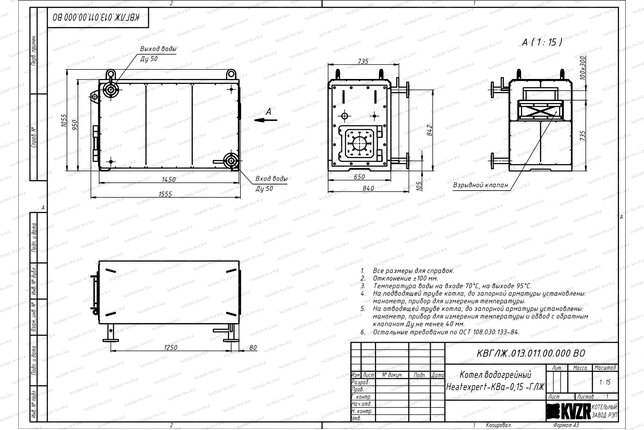
Размер топочной камеры, длина*ширина*высота1250х450х440 мм
Присоединительные размеры по водяному тракту50 Ду
Присоединительные размеры газохода уходящих газов, ширина*высота / сечение300х100 / 0.03 мм/м²
Габаритные размеры котла, длина*ширина*высота1680х840х1050 мм
Масса550 кг
Конструкция котлаВодотрубная
Количество контуровОдноконтурный
РазмещениеНапольный
Тип камеры сгоранияЗакрытый
УправлениеЭлектронное
Принцип работы газового котлаКонвекционный
ЭнергонезависимыйНет
Тип питанияТрехфазное
Встроенный циркуляционный насосНет
Встроенный расширительный бакНет
ЭнергоэффективностьВысокая
Отапливаемая площадьот 900 до 1650 м²
Отапливаемый объемот 2650 до 4850 м³
Размеры корпуса котла, длина*ширина*высота1450х650х950 мм

Промышленный дизельный котел 150 кВт в Мангистау

Промышленный дизельный котел КВа 150 кВт предназначен для установки в промышленных котельных с целью отопления и горячего водоснабжения производственных помещений и жилых зданий. Может работать с широким рядом горелочных устройств как иностранного, так и отечественного производства. Максимальная температура нагрева воды 115 °С, давление - от 0,3 до 0,6 МПа. Используемое топливо – дизель.

Дизельный котел 150 кВт устройство

Водогрейный стальной жидкотопливный котел 150 кВт на дизеле - напольный, гладкотрубный, выполнен в горизонтальном расположении. Газоплотная топка расположена в передней части теплоагрегата. В верхней части котельного блока находится двухходовой конвективный пакет. Фронтовая плита может быть выполнена под конкретный тип горелки. Снаружи котлоагрегат обшивается стальными листами с теплоизоляцией.

Конструкция трубной системы обеспечивает компактность котла. Гладкотрубная поверхность нагрева исключает деформации и разрывы швов. Стены газоплотной топки представляют собой охлаждаемые трубы с вваренной между ними стальной полосой. В задней зоне камеры горения крепится взрывной клапан. При повышении давления в топочной камере, клапан открывается и спускает давление. Конвективные пакеты размещены в шахматном порядке друг напротив друга. Благодаря этому поверхность нагрева имеет большую полезную площадь и максимальный коэффициент передачи тепла. Дымовые газы успевают охладиться к выходу из котлоагрегата до температуры 200-180 °С, что снижает теплопотери.

Благодаря гладкотрубной системе, небольшому объему циркулирующей воды, наличию взрывного клапана – водотрубный котел 150 кВт дизель безопасен, нет риска взрыва в аварийной ситуации.

За счет изоляции трубной системы котла плитами ПТЭ и обшивке стальными листами температура наружных стенок не превышает 30 °С.

Гидравлическая схема котла

Стационарный отопительный водяной котел 150 кВт на жидком дизельном топливе не требователен к качеству питательной воды.

Высокая скорость движения воды турбулизирует поток и не допускает отложение солей и образование накипи на стенках труб. Многочисленные перегородки в коллекторах распределяют поток теплоносителя. В результате чего в трубной системе исключаются застойные зоны, тепловые напряжения и локальный перегрев.

Принцип работы котла 150 кВт на дизеле

Горелка обеспечивает смешивание топлива с воздухом, поступление газовоздушной смеси в топку и ее горение. При помощи горелки поддерживается необходимая температура в котлоагрегате, но не более 115 °С. При достижении предельной температуры воды горелка автоматически отключается и включается.

Тепло образующееся от горения топлива поступает в конвективную часть, нагревая теплоноситель.

Конструкция топочной камеры и ее большой объем позволяют подключать горелки большинства ведущих российских и иностранных производителей, в том числе EMMA, ILKA, CIB UNIGAS, BALTUR, ECOSTAR и другие. Наш завод также производит модели котлов для работы на российских горелках РГМГ, ГБЛ, ГМ, ГМГ, АПНД, ГГ.

Комплект поставки

Цена на напольные дизельные котлы КВа 150 кВт для отопления включает базовую комплектацию. В состав базовой комплектации входит: затворы, предохранительные клапаны, вентили, манометры, термометры, трехходовые краны.

Дополнительная комплектация

  • автоматика – обеспечивает управление и безопасность котла;
  • горелка – обеспечивает смешивание газа и воздуха, подачу газовоздушной смеси к фронту горения, регулирование процесса горения;
  • циркуляционный насос - обеспечивает циркуляцию воды в котлоагрегате;
  • подпиточный насос – позволяет пополнять объем теплоносителя в контуре.

Купить дизельный котел 150 кВт

Для того, что бы купить котел 150 кВт на дизеле в Мангистау вы можете сделать заявку по телефону +7-7172-69-59-73, либо оформить заявку онлайн. Менеджеры дадут консультацию по подбору вспомогательного оборудования для выбранных вами моделей и рассчитают стоимость доставки. Транспортирование котлоагрегата и вспомогательного оборудования до объекта осуществляется автомобильным транспортом.

Комплект поставки

Затвор ДУ 50
Затвор Ду 50
2 штуки
Клапан обратный
Клапан обратный
1 штука
Манометр МП 160
Манометр МП 160
2 штуки
Кран трехходовой ДУ 15
Кран Ду 15
2 штуки
Термометр ТТЖО
Термометр ТТЖО
2 штуки
Оправа термометра ОПТ
Оправа ОПТ
2 штуки
Шаровый кран
Кран шаровый
4 штуки

Дополнительно потребуется

Дизельная горелка Emma
Цена 756 840 тг.
Насос К консольный
К 50-32-125
Цена 283 656 тг.
Насос К консольный
К 50-32-125а
Цена 279 204 тг.
Насос TD
Насос TD32-33G2 (3 кВт)
Цена 788 640 тг.
Насос CHL
Насос CHL2-40 (0.55 кВт)
Цена 368 880 тг.

Похожая продукция

Газовый котел КВа 150 кВт
Цена 2 079 720 тг.
Твердотопливный котел 150 кВт
Цена 2 156 040 тг.
Дизельный котел КВа 200 кВт
Цена 2 143 320 тг.
Дизельный котел КВа 300 кВт
Цена 2 461 320 тг.

Сертификаты товара

Сертификат на водогрейные котлы на газе и жидком топливе
Сертификат на водогрейные котлы на газе и жидком топливе

Собственное производство

Котельный завод производит
  • Паровые котлы от 300 кг до 2.5 тонны пара в час
  • Промышленные водогрейные котлы от 150 КВт до 4 МВт на всех видах топлива
  • Механические топки ТШПМ, шурующая планка и ТЛПХ, ленточное полотно прямого хода
  • Циклоны для очистки воздуха и дымовых газов для производств и промышленных отраслей
  • Транспортеры и системы топливоподачи и шлакоудаления
Подробнее о производстве
Собственное производство
Смотреть видео
с производства