Газовый паровой котел 700 кг (0.7 т пара) - 130°С -0,17 МПа / 1,7 кгс/cм² в Мангистау

Котел паровой 700 кг 130 С на газе
Паровой котел 700 кг 130 С на газе
Чертеж газового парового котла 700 кг 130 С
Газовый паровой котел 700 кг 130 С чертеж
Паровой газовый котел 700 кг в час с температурой 130 С
Газовый паровой котел 700 кг в час с температурой 130 С
Газовый жаротрубный котел 700 кг пара в час 130 С
Жаротрубный газовый котел 700 кг пара в час 130 С
Паровой котел 700 кг в час на газу температура пара 130 С изготовление
Изготовление парового котла 700 кг в час на газу температура пара 130 С
Паровой газовый котел 700 кг температура пара 130 С изготовление
Изготовление парового газового котла 700 кг температура пара 130 С
Паровой котел на газе 700 кг 130 С производство
Производство газовых паровых котлов 700 кг 130 С
Схема парового котла 700 кг 130 С на газу
Паровой котел 700 кг 130 С на газе схема
Котел паровой 700 кг 130 С на газе
Чертеж газового парового котла 700 кг 130 С
Паровой газовый котел 700 кг в час с температурой 130 С
Газовый жаротрубный котел 700 кг пара в час 130 С
Паровой котел 700 кг в час на газу температура пара 130 С изготовление
Паровой газовый котел 700 кг температура пара 130 С изготовление
Паровой котел на газе 700 кг 130 С производство
Схема парового котла 700 кг 130 С на газу
Цена
5 698 560 ₸
От 5 698 560 ₸ с доставкой до г.
Логотип WhatsApp Связаться
по WhatsApp
  • Непрерывная выработка сухого пара независимо от нагрузки котла
  • Отсутствие температурных расширений обеспечивает надежность конструкции
  • Подпитка котла производится даже холодной водой +5 ºС
  • Удобная очистка поверхностей нагрева без остановки котла
  • Работа на самотяге, дымосос не требуется даже при плюсовых температурах

Технические характеристики

МаркаSTEAMEXPERT
ВидПаровой котел КП
Вид топкиГазовая горелка
Конструкция котлаЖаротрубный
Производительность700 кг/ч
Производительность0.7 т/ч
Максимальная тепловая мощность0.52 МВт
Диапазон регулирования мощности40-100 %
ТопливоГаз
Низшая теплота сгорания проектного топлива9400 кКал/кг
КПД котла на ГАЗЕ, не менее90 %
Расход топлива56 нм³/ч
Расход условного топлива75 кг/ч
Температура пара, не более130 °С
Давление пара, не более0.17 МПа
Давление пара, не более1.7 (кгс/см²)
Давление пара, не более1.7 бар
Полный объем котла2.05 м³
Объем паровой части0.18 м³
Аэродинамическое сопротивление51 (5.1) Па (мм. вод. ст.)
ТягаЕстественная
Объем топочной камеры0.85 м³
Размер топочной камеры, диаметр*глубина800х1700 мм
Присоединительные размеры выхода пара80 Ду
Присоединительные размеры по водяному тракту32 Ду
Присоединительные размеры по дымовым газам / диаметр дымовой трубы250 мм
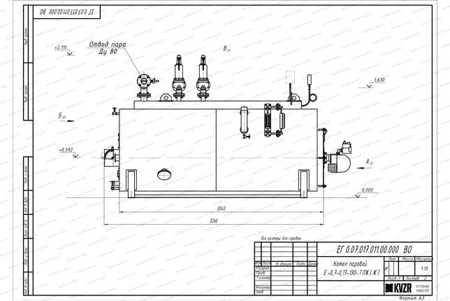
Габаритные размеры котла, длина*ширина*высота3300х1550х1650 мм
Масса2500 кг
ЭнергоэффективностьВысокая
БрендSTEAMEXPERT

Паровой котел STEAMEXPERT Е 0.7 0.17 130 Г на газу в Мангистау

Промышленный газовый паровой котел Е 0.7 Мангистау предназначен для производства пара температурой до 130 °С и давлением 0.17 МПа на технологические нужды для вашего производства. Парогенератором пользуются бетонные заводы при производстве ЖБИ изделий, химические предприятия, строительные организации, воинские части, больницы, бани, предприятия нефтегазовой, кожевенной, пищевой.

Наши паровые котлы STEAMEXPERT Е 0,7 0,17 на газе имеют следующие преимущества

  • Большая поверхность испарения препятствует выносу капель воды и увеличивает скорость испарения
  • Дополнительное разделение пара от воды в паросборной камере. Повышается качество пара путем улавливания капелек воды из пара
  • Большая паровая камера обеспечивает непрерывную подачу пара при любой нагрузке и сокращает время выхода на заявленную производительность
  • Эффективная конвективная часть котла способствует высокой скорости нагрева воды
  • Отсутствие тепловых расширений благодаря комбинированной компановке
  • Большой водяной объем котла 0,7 т позволяет производить подпитку холодной водой +5° без температурных колебаний
  • Чистка конвективного пакета паром без остановки котла. На задней стенке агрегата находятся лючки для обдувки. Обдувка производится аппаратом для обдувки при минимальной нагрузке и максимальном давлении

Жаротрубный паровой котел пар 700 кг среднего давления можно перевести в водогрейный режим изменив схему подключения.

Устройство парового газового котла 700 кг в час

Промышленный стальной паровой котел КП 700 газовый изготавливается в горизонтальном исполнении и состоит из двух цилиндров, паросборника, конвективной части. Цилиндры размещаются один в другом и соединяются фланцами. Внутренний цилиндр – это топочная часть генератора. Межцилиндрическое пространство заполняется водой, сверху приваривается паросборник, на который крепятся 2 предохранительных клапана.

К фронтовой плите крепится горелка для подачи топлива в топку жаротрубного котла. Газовый паровой котел 700 кг может работать с отечественными горелками EMMA и импортными UNIGAS, BALTUR, ECOSTAR, FBR S.R.L. В качестве топлива может применяться природный газ низкого и среднего давления, а также сжиженный газ. Продукты сгорания выводятся чрез дымовую трубу. В основании дымовой трубы установлен предохранительный клапан.

Вода в цилиндрический котел steam 700 подается насосом. На паровой промышленный котел желательно устанавливать рабочий и резервный насосы. Дренажи и воздушники производят дренирование трубной системы от шлама и удаление скапливающего воздуха.

Безопасность установки обеспечивают клапаны. При повышении давления выше допустимого, срабатывают клапаны осуществляя автоматический выпуск пара.

Автоматика парового котла предусмотрена для управления и защиты. В случае отклонения от заданных параметров происходит световой и звуковой сигнал.

Паровой котел Е 0.7 0.17 130 Г на газе принцип работы

Газ сгорает в топочной части парового котла Е 0 7 0 17, окруженной водяной охлаждаемой рубашкой. Продукты горения проходят через трубный пучок и выходят в верхней части генератора.

Трубный пучок находится за камерой горения. Трубки заполнены водой и омываются горячими газами, за счет чего происходит теплообмен. Пар образуется при испарении нагреваемой воды и собирается в верхней части котлоагрегата, над которой выполнена паросборная камера, далее через паропровод направляется потребителю на технологические нужды.

Современный генератор пара работает без дымососа, тягу в котле обеспечивает дымовая труба.

Монтаж и подключение

Горизонтальный газовый паровой котел 700 кг в час для производства пара поставляется блоками максимальной заводской готовности. Агрегат устанавливается в котельной на специально подготовленную ровную поверхность. Подсоединяется по воде, устанавливается запорная арматура на подводящем трубопроводе и отводящем паропроводе, предохранительные клапаны и контрольно-измерительные приборы. Подсоединяется вентилятор и автоматика.

Купить газовый паровой котел Е 0.7-0.17-130 Г

Для того чтобы купить паровой котел 700 кг пара в час на газе в Мангистау, вы можете сделать заявку по телефону +7-7172-69-59-73, либо оформить заявку онлайн. Менеджеры дадут консультацию по подбору вспомогательного оборудования для выбранных вами моделей и рассчитают стоимость доставки. Транспортирование котлоагрегата и вспомогательного оборудования до объекта осуществляется автомобильным транспортом.

Комплект поставки

Предохранительный клапан 17с28нж Ду 50
Клапан предохранительный 17с28нж Ду 50
2 штуки
Шаровый кран
Кран шаровый
1 штука
Вентиль Ду 15
Вентиль Ду 15
1 штука
Вентиль Ду 20
Вентиль Ду 20
1 штука
Вентиль Ду 25
Вентиль Ду 25
2 штуки
Вентиль Ду 32
Вентиль Ду 32
1 штука
Указатель уровня
Указатель уровня
2 штуки
Устройство запорное Ду 20
Запорное устройство Ду 20
2 штуки
Затвор Ду 80
Затвор Ду 80
1 штука
Клапан обратный
Клапан обратный
1 штука
Кран трехходовой ДУ 15
Кран Ду 15
3 штуки
Манометр ДМ2005 Сг 10.0 кгс см2
Манометр ДМ2005Сг 10,0 кгс/см2
2 штуки
Манометр МП 160
Манометр МП 160
1 штука

Дополнительно потребуется

Горелка газовая Emma
Цена 2 524 920 тг.
Дымовые трубы
Цена по запросу
CDM насос
Насос CDM 1-6 (0.37 кВт)
Цена по запросу
Pedrollo насос
Насос Pedrollo CP-158 (0.75 кВт)
Цена 214 968 тг.
Газоход котла
Цена по запросу

Похожая продукция

Котел паровой 700 кг 115 С на газе
Газовый паровой котел 700 кг (0.7 т пара) - 115°С -0,07 МПа / 0,7 кгс/cм²
Производительность, кг/ч700
ТопливоГаз
Температура пара, не более, °С115
Давление пара, не более, МПа0.07
Цена 4 814 520 тг.
Котел паровой 0.7 тонны 170 С на газе
Газовый паровой котел 700 кг (0.7 т пара) - 170°С -0,9 МПа / 9 кгс/cм²
Производительность, кг/ч700
ТопливоГаз
Температура пара, не более, °С170
Давление пара, не более, МПа0.9
Цена 6 379 080 тг.
Котел паровой 500 кг 130 С на газе
Газовый паровой котел 500 кг (0.5 т пара) - 130°С -0,17 МПа / 1,7 кгс/cм²
Производительность, кг/ч500
ТопливоГаз
Температура пара, не более, °С130
Давление пара, не более, МПа0.17
Цена 4 820 880 тг.
Котел паровой 1000 кг 130 С на газе
Газовый паровой котел 1000 кг (1.0 т пара) - 130°С -0,17 МПа / 1,7 кгс/cм²
Производительность, кг/ч1000
ТопливоГаз
Температура пара, не более, °С130
Давление пара, не более, МПа0.17
Цена 7 511 160 тг.
Котел паровой 700 кг 130 С на дизеле
Дизельный паровой котел 700 кг (0.7 т пара) - 130°С -0,17 МПа / 1,7 кгс/cм²
Производительность, кг/ч700
ТопливоЖидкое, Дизель
Температура пара, не более, °С130
Давление пара, не более, МПа0.17
Цена 5 698 560 тг.

Сертификаты товара

Сертификат на котлы отопительные паровые КП
Сертификат на котлы отопительные паровые КП

Опросные листы

Все опросные листы
Опросный лист на паровой котел
Заполнить опрос

Собственное производство

Котельный завод производит
  • Паровые котлы от 300 кг до 2.5 тонны пара в час
  • Промышленные водогрейные котлы от 150 КВт до 4 МВт на всех видах топлива
  • Механические топки ТШПМ, шурующая планка и ТЛПХ, ленточное полотно прямого хода
  • Циклоны для очистки воздуха и дымовых газов для производств и промышленных отраслей
  • Транспортеры и системы топливоподачи и шлакоудаления
Подробнее о производстве
Собственное производство
Смотреть видео
с производства